Telegram
WhatsApp
  • Вернуться на главную страницу

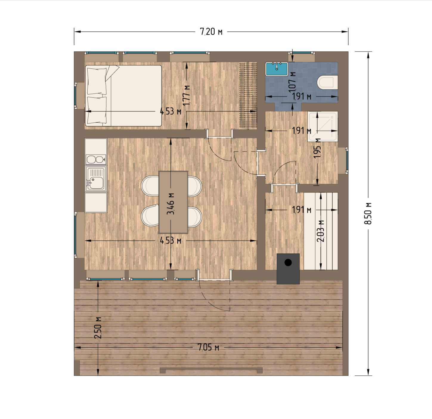
Модульный дом 
"Барн 36"

Размер общий 6х6 - 36 м2
Один модуль: жилой 
Возможные варианты комплектации:
- Стандарт
- Комфорт
- Люкс
Указанная стоимость не включает стоимость доставки и устройства фундамента.
Беспроцентная рассрочка до 12 месяцев!

 Варианты комплектаций:

Комплектация "Стандарт"
  • Размер 6х6
  • Каркас: доска 50х100 мм. камерной сушки, обвязка 100х150 мм
  • Утепление стены 100 мм
  • Утепление пол/потолок 100 мм
  • Отделка снаружи Профнастил НС8 Графит + Вагонка АВ
  • Отделка внутри ОСП
  • Пароизоляция, ветровлагозащита -стандарт
  • Ступени 
  • Окна:  ПВХ, 700х1100 серое поворотно-откидной механизм открывания 2 шт
  • Входная дверь – железная сейф дверь в цвете шоколад
  • Напольное покрытие ОСБ

Стоимость от 820 000 ₽

Комплектация "Комфорт"
  • Размер 6х6
  • Каркас: доска 50х100 мм. камерной сушки, обвязка 100х150 мм
  • Утепление стены 100 мм
  • Утепление пол/потолок 100 мм
  • Отделка снаружи Профнастил НС20 Графит + Вагонка АВ
  • Отделка внутри Вагонка АВ
  • Пароизоляция, ветровлагозащита -стандарт
  • Ступени 
  • Окна : ПВХ, 800*2000 п/о лам.Графит - 2 шт
    ПВХ, 1000*600 фрамуга лам.Графит -1 шт
    ПВХ, 500*500 п/о лам.Графит - 1шт

  • Входная дверь –  ПВХ профиль, стекло, лам. Графит
  • Напольное покрытие - линолеум
  • Перегородка с м/к дверью под с/у
  • Электрика базовая 
  • Покраска лицевой

Стоимость от 1 029 000 ₽

Комплектация "Люкс"
  • Размер 6х6
  • Каркас: доска 50х100 мм. камерной сушки, обвязка 100х150 мм
  • Утепление стены 100 мм
  • Утепление пол/потолок 150 мм
  • Отделка снаружи Профнастил НС20 Графит + Планкен АВ
  • Отделка внутри Вагонка АВ
  • Пароизоляция, ветровлагозащита - премиум
  • Окна : ПВХ,1000*600 фрамуга лам.Графит -1 шт
    ПВХ, 500*500 п/о лам.Графит - 1шт
    ПВХ, 1200*600 п/о лам.Графит - 1 шт

  • Входная дверь –  Панорамная входная группа
  • Напольное покрытие - SPC ламинат
  • Перегородка с м/к дверью для с/у
  • Перегородка с м/к дверью для спальни
  • Электрика скрытая, расширенная
  • Покраска лицевой
  • Теплый пол
  • Терморегуляторы - 2 шт

Стоимость от 1 572 000 ₽

Принимаем предзакзы на весну-лето
по текущим ценам!
Дополнительные опции для любой комплектации:  
  • Размер модуля 6х3 + веранда 6х3
  • Окна ПВХ размером 500х500 , 700х1100, 1000х600, 1200х1200, 1600х1600, 2000х2000
  • Дополнительная перегородка с межкомнатной дверью под с/у, тамбур или комнату
  • Увеличить высоту до 2.5 м
  • Крыша из крашенного профлиста
  • Отделка снаружи имитация бруса АВ
  • Отделка снаружи вертикальной вагонкой 
  • Утепление 150 или 200 мм
  • Дополнительная электрика
  • Сейф-дверь стекло из ПВХ профиля
  • Покраска снаружи и внутри
  • Подшив стропильной системы на веранде
  • Открытая терраса
  • Сетка от грызунов
  • Водосточная система
  • Доставка и установка
  • Свайный фундамент
Хотите увидеть готовые проекты своими глазами ? 
Запишитесь на просмотр!
Your goal
Slenderness
Muscle mass
Flexibility
Good posture
Choose your instructor
Teresa
Elaine
Matt
Choose your instructor
Taylor
Jonathan
Megan
Choose your instructor
Bethany
Tim
Your fitness level
Enter your:
Do you suffer any chronic diseases?
Specify which chronic diseases you suffer from and we will create an optimum training program for you
Choose your city
Check the box
Check the box
Check the box
Give your contact info
Отправка формы
Подтвердите, что вы не робот
или нажмите Enter
Отправьте форму заявки и мы с вами свяжемся  для консультации!
Благодарю за обращение в нашу компанию!
Мы ценим ваше время, поэтому предлагаем вам ознакомится с нашими работами в телеграмм канале: 
Перейти в Telegram
Заполните форму заявки и мы с вами свяжемся!
Выберите размер
Когда он вам нужен ?
Куда нужно будет доставить?
Заполните форму и нажмите "далее"
Отправка формы
Подтвердите, что вы не робот
или нажмите Enter
Выберите размер
Когда он вам нужен ?
Куда нужно будет доставить?
Заполните форму и нажмите "далее"
Отправка формы
Подтвердите, что вы не робот
или нажмите Enter
Выберите размер
Когда он вам нужен ?
Куда нужно будет доставить?
Заполните форму и нажмите "далее"
Отправка формы
Подтвердите, что вы не робот
или нажмите Enter
Выберите размер
Когда он вам нужен ?
Куда нужно будет доставить?
Заполните форму и нажмите "далее"
Отправка формы
Подтвердите, что вы не робот
или нажмите Enter
Благодарю за обращение в нашу компанию!

Мы ценим ваше время, поэтому предлагаем вам ознакомится с нашими работами в телеграмм канале: 
Перейти в Telegram
Укажите свой номер и мы вам перезвоним!

Интересуют условия по рассрочке ?

Укажите свой номер и мы вас проконсультируем!