Telegram
WhatsApp
  • Вернуться на главную страницу
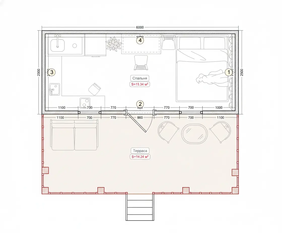
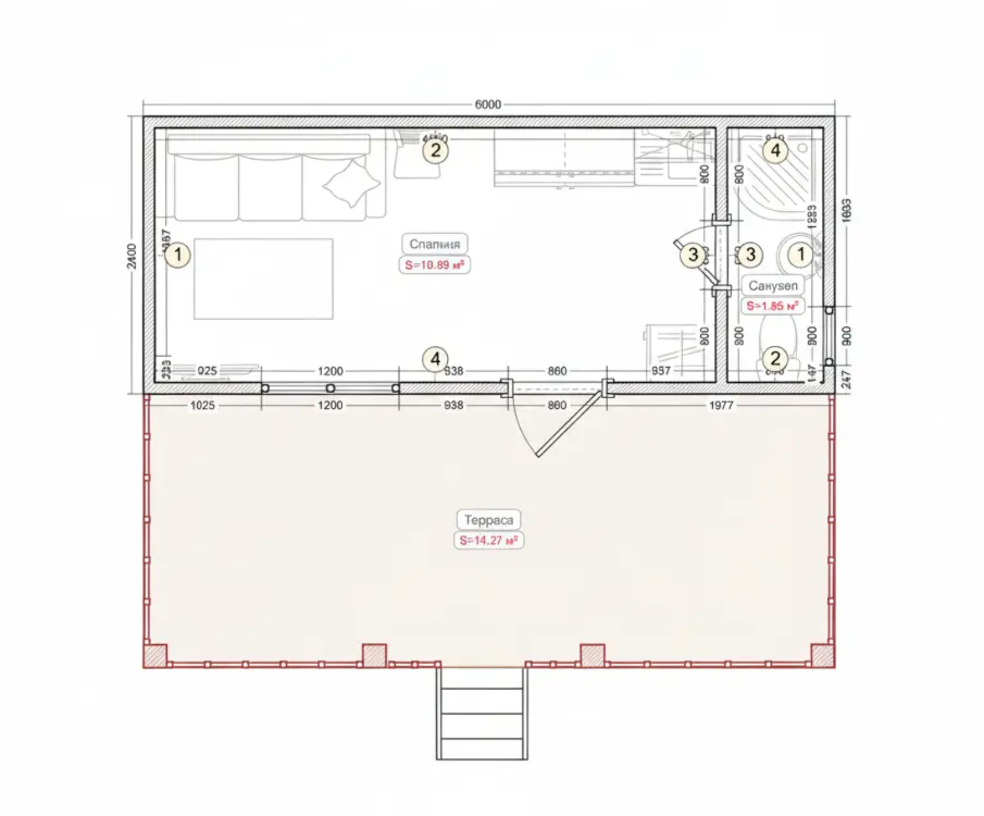
Дачный домик 
"Стандарт Эко"
Размер общий: 6х4.8
Площадь общая: 28.8 м2
Жилая часть: 6х2.4 - 14.4 м2
Веранда: 6х2.4 - 14.4. м2 

 Варианты комплектаций:

Комплектация "Стандарт"
  • Размер 6х4.8 или 6х6
  • Каркас: доска 50х100 мм. камерной сушки, обвязка 100х150 мм
  • Отделка снаружи вагонка "С"
  • Отделка внутри ОСБ
  • Утепление 100 мм
  • Пароизоляция, ветровлагозащита -стандарт
  • Веранда с перилами «вертикаль»
  • Ступени 2 шт 
  • Окно 700х1100 белое поворотно-откидной механизм открывания 2 шт 
  • Входная дверь – железная сейф дверь в цвете шоколад
  • Напольное покрытие ОСБ

Стоимость от 349 500 ₽

Комплектация "Норма"
  • Размер 6х4.8 или 6х6
  • Каркас: доска 50х100 мм. камерной сушки, обвязка 100х150 мм
  • Отделка снаружи вагонка "С"
  • Отделка внутри вагонка "С"
  • Утепление 100 мм
  • Пароизоляция, ветровлагозащита -стандарт
  • Веранда с перилами «вертикаль»
  • Ступени 2 шт 
  • Окно 700х1100 белое поворотно-откидной механизм открывания 2 шт 
  • Входная дверь – железная сейф дверь в цвете шоколад
  • Электрика базовая наружная белая 
  • Покраска снаружи 
  • Напольное покрытие линолеум

Стоимость от 447 800 ₽

Комплектация "Комфорт"
  • Размер 6х4.8 или 6х6
  • Каркас: доска 50х100 мм. камерной сушки, обвязка 100х150 мм
  • Отделка снаружи вагонка "АВ"
  • Отделка внутри вагонка "АВ"
  • Утепление 100 мм
  • Пароизоляция, ветровлагозащита -стандарт
  • Веранда с перилами «вертикаль»
  • Ступени 2 шт 
  • Окно 700х1100 белое поворотно-откидной механизм открывания 2 шт
  • Входная дверь – железная сейф дверь в цвете шоколад
  • Электрика базовая скрытая матовая белая/черная 
  • Покраска снаружи 
  • Напольное покрытие кварцвинил

Стоимость от 529 600 ₽

Комплектация "Люкс"
  • Размер 6х4.8 или 6х6
  • Каркас: доска 50х100 мм. камерной сушки, обвязка 100х150 мм
  • Отделка снаружи вагонка "АВ"
  • Отделка внутри вагонка "АВ"
  • Утепление 100 мм
  • Пароизоляция, ветровлагозащита -премиум
  • Веранда с перилами «вертикаль»
  • Ступени 2 шт 
  • Окно 700х1100 белое поворотно-откидной механизм открывания 2 шт 
  • Входная дверь: ПВХ стекло дверной профиль или Дверь с терморазрывом сейф
  • Электрика базовая скрытая матовая белая/черная 
  • Покраска снаружи 
  • Напольное покрытие кварцвинил
  • Теплый пол 
  • Уличное освещение Бра в 2 стороны 
  • Терморегулятор механический 2 шт черный/белый 
  • Подшив стропильной системы на веранде 
  • Перегородка под санузел с м/к дверью 
  • Обработка обвязок ултаном

Стоимость от 763 500 ₽

Принимаем предзакзы на весну-лето по текущим ценам!
Дополнительные опции для любой комплектации:  
  • Размер модуля 6х3 + веранда 6х3
  • Окна ПВХ размером 500х500 , 700х1100, 1000х600, 1200х1200, 1600х1600, 2000х2000
  • Дополнительная перегородка с межкомнатной дверью под с/у, тамбур или комнату
  • Увеличить высоту до 2.5 м
  • Крыша из крашенного профлиста
  • Отделка снаружи имитация бруса АВ
  • Отделка снаружи вертикальной вагонкой 
  • Утепление 150 или 200 мм
  • Дополнительная электрика
  • Сейф-дверь стекло из ПВХ профиля
  • Покраска снаружи и внутри
  • Подшив стропильной системы на веранде
  • Сетка от грызунов 
  • Водосточная система
  • Доставка и установка
  • Свайный фундамент
Хотите увидеть готовые проекты своими глазами ? 
Запишитесь на просмотр!
8 (950) 468-10-10
Telegram
WhatsApp
г. Екатеринбург
Your goal
Slenderness
Muscle mass
Flexibility
Good posture
Choose your instructor
Teresa
Elaine
Matt
Choose your instructor
Taylor
Jonathan
Megan
Choose your instructor
Bethany
Tim
Your fitness level
Enter your:
Do you suffer any chronic diseases?
Specify which chronic diseases you suffer from and we will create an optimum training program for you
Choose your city
Check the box
Check the box
Check the box
Give your contact info
Отправка формы
Подтвердите, что вы не робот
или нажмите Enter
Отправьте форму заявки и мы с вами свяжемся  для консультации!
Благодарю за обращение в нашу компанию!
Мы ценим ваше время, поэтому предлагаем вам ознакомится с нашими работами в телеграмм канале: 
Перейти в Telegram
Заполните форму заявки и мы с вами свяжемся!
Выберите размер
Когда он вам нужен ?
Куда нужно будет доставить?
Заполните форму и нажмите "далее"
Отправка формы
Подтвердите, что вы не робот
или нажмите Enter
Выберите размер
Когда он вам нужен ?
Куда нужно будет доставить?
Заполните форму и нажмите "далее"
Отправка формы
Подтвердите, что вы не робот
или нажмите Enter
Выберите размер
Когда он вам нужен ?
Куда нужно будет доставить?
Заполните форму и нажмите "далее"
Отправка формы
Подтвердите, что вы не робот
или нажмите Enter
Выберите размер
Когда он вам нужен ?
Куда нужно будет доставить?
Заполните форму и нажмите "далее"
Отправка формы
Подтвердите, что вы не робот
или нажмите Enter
Благодарю за обращение в нашу компанию!

Мы ценим ваше время, поэтому предлагаем вам ознакомится с нашими работами в телеграмм канале: 
Перейти в Telegram

Интересуют условия по рассрочке ?

Укажите свой номер и мы вас проконсультируем!

Интересуют условия по рассрочке ?

Укажите свой номер и мы вас проконсультируем!